Bedford Street, Watford
£375,000
2
19 Photos
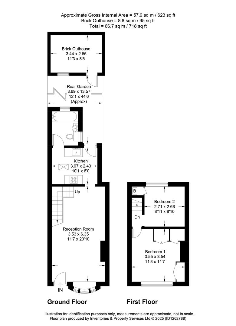
This beautifully presented two-bedroom mid-terrace cottage is ideally located just a few minutes’ walk from Watford Junction Station and a range of local amenities. The ground floor offers a spacious open-plan living and dining area, a generously sized kitchen, and a modern bathroom. Upstairs, you’ll find two well-proportioned bedrooms. The property features a newly refurbished kitchen and bathroom, gas central heating, and a low-maintenance rear garden that also includes a sound-proofed outbuilding—perfect for use as a studio or home office. Contact us today to arrange a viewing!
Summary
This beautifully presented two-bedroom mid-terrace cottage is ideally located just a few minutes’ walk from Watford Junction Station and a range of local amenities. The ground floor offers a spacious open-plan living and dining area, a generously sized kitchen, and a modern bathroom. Upstairs, you’ll find two well-proportioned bedrooms. The property features a newly refurbished kitchen and bathroom, gas central heating, and a low-maintenance rear garden that also includes a sound-proofed outbuilding—perfect for use as a studio or home office. Contact us today to arrange a viewing!Key features
- Beautifully presented two-bedroom mid-terrace cottage
- Sound-proofed outbuilding—ideal as a studio, workspace, or hobby room
- Modern ground-floor bathroom
- Low-maintenance rear garden
- Just a few minutes’ walk from Watford Junction Station and local amenities
Full Description
Viewing/Disclaimer
Please contact us on 01923 228822 if you wish to arrange a viewing appointment for this property or require further information.Coopers Estate Agents endeavour to maintain accurate depictions of properties in Virtual Tours, Floor Plans and descriptions, however, these are intended only as a guide and purchasers must satisfy themselves by personal inspection.

